로그인
아이디/비번찾기
회원가입
설문조사
NCS평가
사이트맵
인트라넷
커뮤니티
+ Home
> 커뮤니티 >
포트폴리오
커뮤니티
공지사항
포트폴리오
갤러리
건의함
수강후기
서식다운로드
일반자료실
자유게시판
포트폴리오
게시물 상세내용
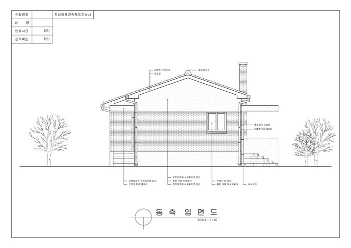
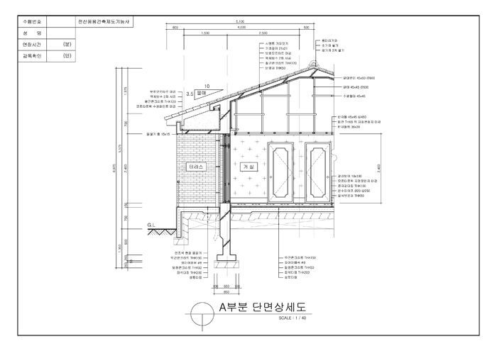
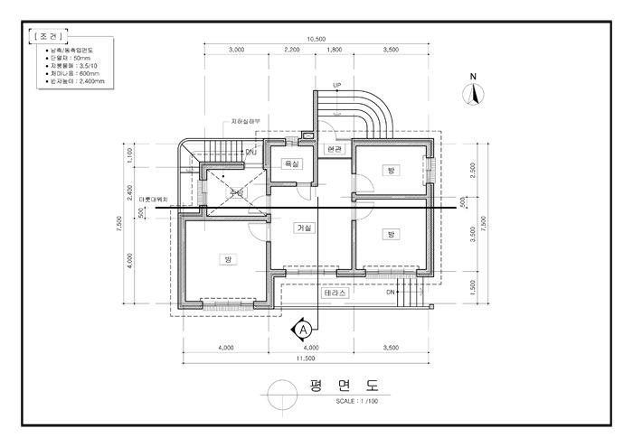
전산응용건축제도
글쓴이
고진욱
조회수
2135
작성일
2015-07-16 14:49:29
전산응용건축제도
평면도1.jpg [0.11MB] / Download 232
단면도1.jpg [0.11MB] / Download 224
남측입면도1.jpg [0.12MB] / Download 204
동측입면도1.jpg [0.11MB] / Download 227
목록보기
수정하기
삭제하기
이전글
: 패키지디자인
다음글
: 기계제도
HOME
개인정보취급방침
온라인 입학상담
오시는 길
회사기본정보
회사명 :
(재)백제직업전문학교
대표자 :
이영식
T :
063-286-6200
/ F :
063-286-6205
전북특별자치도 전주시 덕진구 기린대로 330 (아트빌딩3~8층)
사업자/통신판매업신고번호 정보
사업자번호 :
411-82-04745
/
개인정보보호책임자 정보
개인정보보호책임자 :
이영식
Tel :
063-286-6200
Copyright © 1993
(재)백제직업전문학교
All Rights Reserved.
(재)백제직업전문학교
학교소개
학교소개
인사말
교직원소개
연혁
시설안내
오시는 길
학교소식
모집중인 교육
현재모집중인과정
진행중인과정
연간모집과정
국비과정 입학안내
입학신청
온라인접수
입학상담
자주하는 질문
접수진행/합격확인
취업정보센터
기업체구인
인재정보
수료생 취업현황
취업자료실
취업정보
자격증시험안내
커뮤니티
공지사항
포트폴리오
갤러리
건의함
수강후기
서식다운로드
일반자료실
자유게시판
입학상담 및 수강신청
063-286-6200
평일 : 09:00~20:00
/
토,일 휴무